Портфолио
Контакты
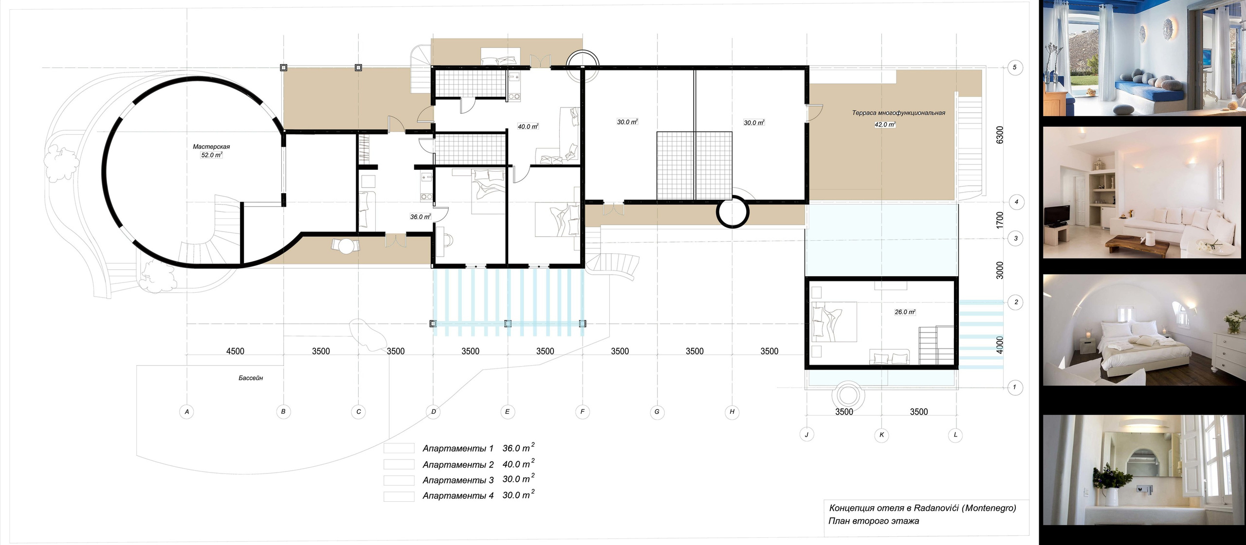
Эко отель в Radanovici (Черногория)
Портфолио
Villa Anosino Park
Villa of a successful person.
Ершово. Дом 200 кв. м.
Дом 180 кв. м. Новая Рига
Сarports
Baltic house. Квартал Международный.
Загородный дом в Пушкино
Балчуг
Барнхаус на берегу озера
Город набережных двухуровневая квартира